Wohnen

WOHNPROJEKT WOHNHAUS GASS

Das Wohnhaus Gass in Andelsbuch findet sich in sonniger Ruhelage auf der Andelsbucher Ebene im Weiler Gass, 5 Minuten zu Fuß von der Ortsmitte. Diese nach 3 Seiten unverbaute Bestlage sorgt in Verbindung mit anspruchsvoller und funktioneller Architektur für ein schönes Wohnen in hoher Qualität.

Südseitig in der Tiefe variabel abschattbare Schöpfe sprechen typologisch und funktional eine ähnliche Sprache wie die alten „Wälderschöpfe“.

Eine Fotovoltaikanlage in Verbindung mit Erdwärme gewährleistet Unabhängigkeit von fossilen Energieträgern sowie äußerst günstige Heiz- und Betriebskosten.

Eine gediegene Mischbauweise aus tragenden Beton- und Ziegelwänden mit gedämmter Schindelholzfassade ermöglichen Wandaufbauten ohne Folien – ein Haus zum Atmen.

Das Wohnhaus Gass bietet Platz für 9 helle Wohnungen mit großzügigen südseitigen Schiebefensterverglasungen von ca. 55 – 115 m2.

Fertigstellung August 2024

Das Umfeld

Das Projekt

Roswitha Schneider
Ansicht Kirchweg
Ansicht Kirchweg
Roswitha Schneider
Ansicht Süd
Ansicht Süd
Roswitha Schneider
Ansicht Südost
Ansicht Südost
Roswitha Schneider
Ansicht Südwest
Ansicht Südwest
Roswitha Schneider
Ansicht Südost
Ansicht Südost
Roswitha Schneider
Wohnung Dg
Wohnung Dg
Klaus Metzler ZT GmbH
Orthofoto
Orthofoto
Klaus Metzler ZT GmbH
Lageplan
Lageplan
Klaus Metzler ZT GmbH
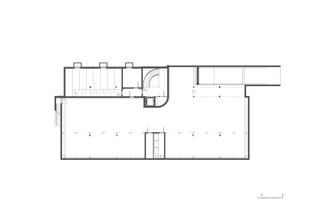
Wohnen im Weiler Gass Grundriss UG
Wohnen im Weiler Gass Grundriss UG
Klaus Metzler ZT GmbH
Wohnen im Weiler Gass Grundriss EG
Wohnen im Weiler Gass Grundriss EG
Klaus Metzler ZT GmbH
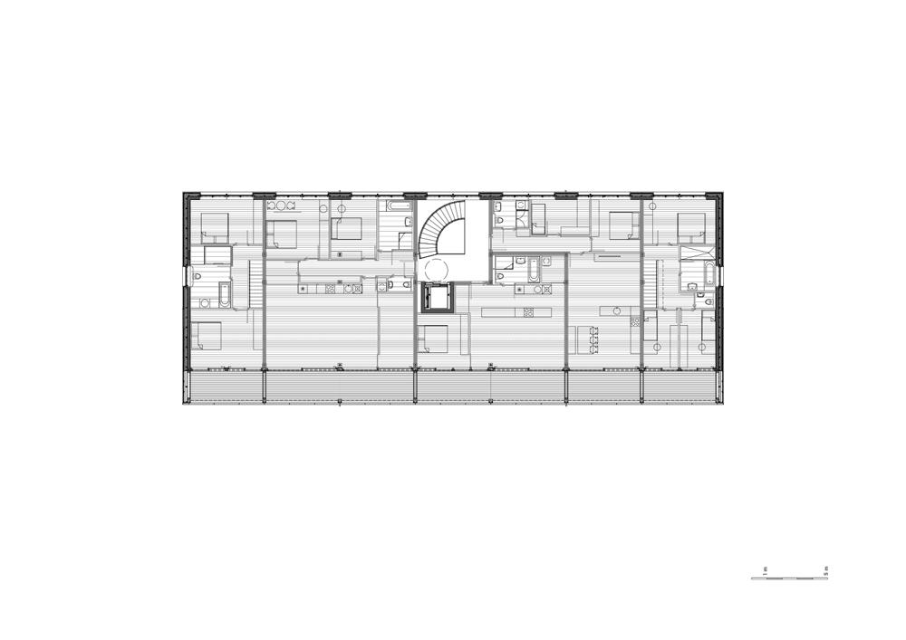
Wohnen im Weiler Gass Grundriss OG
Wohnen im Weiler Gass Grundriss OG
Klaus Metzler ZT GmbH
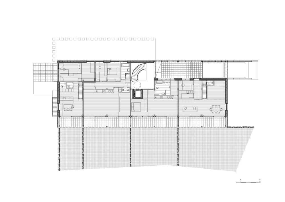
Wohnen im Weiler Gass Grundriss DG
Wohnen im Weiler Gass Grundriss DG
Klaus Metzler ZT GmbH
Wohnen im Weiler Gass Regelschnitt
Wohnen im Weiler Gass Regelschnitt
Klaus Metzler ZT GmbH
Wohnen im Weiler Gass Mittenschnitt
Wohnen im Weiler Gass Mittenschnitt
Klaus Metzler ZT GmbH
Wohnen im Weiler Gass Ansicht Süd
Wohnen im Weiler Gass Ansicht Süd
Klaus Metzler ZT GmbH
Wohnen im Weiler Gass Ansicht Nord
Wohnen im Weiler Gass Ansicht Nord
Klaus Metzler ZT GmbH
Wohnen im Weiler Gass Ansicht West
Wohnen im Weiler Gass Ansicht West
Klaus Metzler ZT GmbH
Wohnen im Weiler Gass Ansicht Ost
Wohnen im Weiler Gass Ansicht Ost